Press Releases

17 September 2025

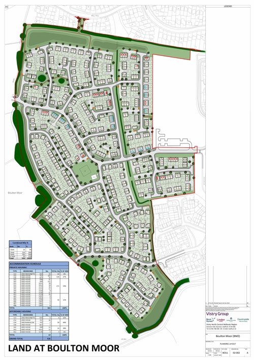
Vistry completes land acquisition for 526 new homes for Boulton Moor, Derby

Vistry Group, the UK’s leading provider of mixed-tenure homes, has completed on the 526 new homes on a 47-acre site in Boulton Moor, Derby. This new development promises an excellent mix of much-needed family homes for the area, including affordable homes, homes for the private rental sector and properties for sale on the open market. The site will also feature a playground for the younger members of the new community.

 

Dave Bradley, Managing Director of Vistry North Midlands, said: "I am delighted that our land team has completed the acquisition of land to build 526 high-quality new homes at Boulton Moor. This marks a significant step forward in bringing much-needed housing to the area, including a blend of affordable, PRS and private homes designed to create a vibrant and sustainable community. We look forward to working with our partners and stakeholders to bring this development to life and provide homes that cater to the needs of local people."

 

This development forms the third phase of Derby’s Strategic Urban Extension, designed to create a 2,600-home village attached to the city. It will incorporate facilities including schools, shops, a care home, businesses, a transport hub, and electric charging stations.

 

Planning permission was granted in May 2025 with work expected to start later this year.
 

Subscribe for news & alerts