Press Releases

11 February 2026

Vistry to deliver over 450 new homes in Barnsley

Vistry, the UK’s leading provider of mixed-tenure homes, will deliver more than 450 new homes across two sites in Barnsley, with 50% of the properties designated as affordable housing.

The homes will be delivered at Mapplewell, in the north of the borough, and at a second site in Carlton.

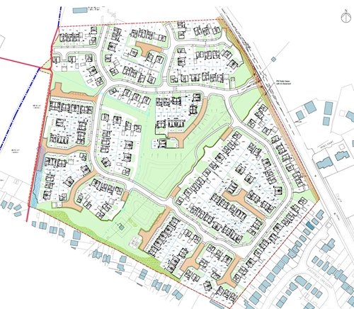
At Mapplewell, Vistry will build 239 new homes, half of which will be affordable and managed by its affordable housing partner, Vico Homes. Located around three miles from Barnsley town centre, just off the A61, the brownfield site is allocated in Barnsley’s Local Plan and will regenerate land formerly used for open-cast mining.

Full planning permission is already in place at Mapplewell, with work due to begin shortly on a range of homes from two-bedroom bungalows to four-bedroom detached family houses.

At Carlton, Vistry has recently exchanged contract with the landowner and will now progress detailed proposals for 215 new homes, again with 50% affordable housing provision. The plans include a £1 million investment in local education, alongside highway improvements, enhanced biodiversity measures and new public access links.

Both sites are allocated in Barnsley’s Local Plan and will make a significant contribution towards meeting local housing need, supporting more people to live and work in the area.

Andrew Poyner, Managing Director of Vistry West Yorkshire, said: “Together, these new developments will make a real difference to Barnsley, both in terms of housing supply and the wider investment that comes with it. Bringing a former mining site back into use, investing in schools and infrastructure, and making sure half the homes are affordable is exactly the kind of balanced growth our model enables, and what communities want to see.”

Subscribe for news & alerts